22482:中古戸建
| 価格 | 7,280万円 |
|---|---|
| 所在地 | 横浜市神奈川区白幡町 |
| 交通 | 東急東横線 白楽駅まで 徒歩8分 東急東横線 妙蓮寺駅まで 徒歩7分 |
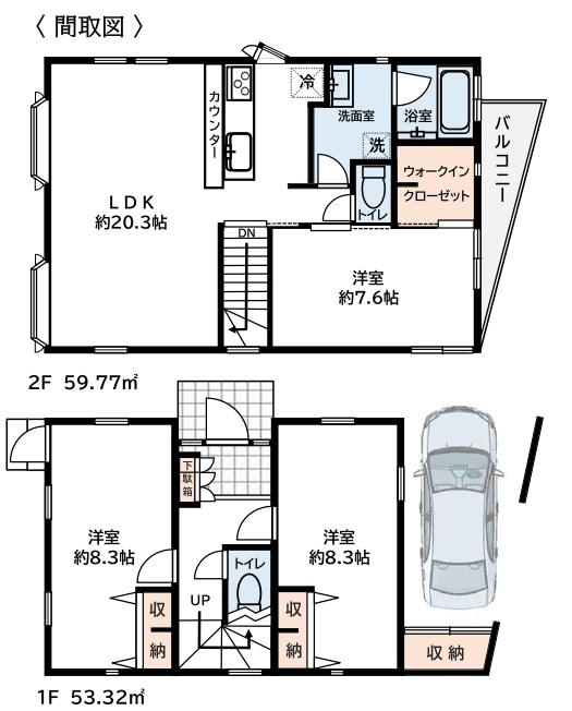
| 間取 | 3LDK |
| 土地面積 | 82.67m²(25坪) |
| 建物面積 | 113.09m²(34.2坪) |
| 私道面積 | - |
| 築年月 | 2003/09 |
| 学区 | 小学校区:白幡小学校 中学校区:神奈川中学校 |
| 建物構造 | 木造 |
|---|---|
| 階建 | 地上2階建 |
| 建ぺい率 | 80% |
| 容積率 | 160% |
| 地目 | 宅地 |
| 用途地域 | 近隣商業地域 |
| 土地権利 | 所有権 |
| 取引態様 | 仲介 |
| 引渡時期 | 即時 |
| セットバック | |
|---|---|
| 接道 | 北 4m(幅員) |
| 諸費用 | |
| 他法条例 | |
| 建築確認番号 | |
| 取引条件有効期限 | 令和08年3月25日 |
特色
内装リフォーム済、2駅利用可、駅から平坦、道路とフラット、整形地、注文住宅、駐車場、都市ガス












