12467:TH クリザンテーモ
| 賃料 | 17.5万円 |
|---|---|
| 共益費・管理費 | 5,000円 |
| 所在地 | 横浜市港北区菊名6丁目 |
| 交通 | 東急東横線 菊名駅まで 徒歩5分 JR横浜線 菊名駅まで 徒歩5分 |
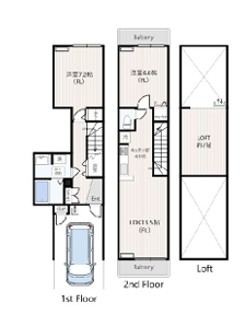
| 間取 | 2LDK+ロフト |
| 総戸数 | 3戸 |
| 面積 | 65.27m²(19.74坪) |
| 築年月 | 2012/11 |
| 敷金 | 1ヶ月 |
|---|---|
| 礼金 | 1ヶ月 |
| 保証金 | - |
| 建物構造 | 木造 |
| 所在階 | 2階建 |
| 学区 | |
| 取引態様 | 仲介 |
| 更新 | 可 定期借家2年 更新料:新賃料の1ヶ月分 |
| 敷引・償却 | - |
|---|---|
| 火災保険 | 要加入22,000円 保険期間2年 |
| 保証会社 | 必須 |
| 駐車場 | 付- |
| 諸費用 | |
| 入居時期 | 相談 |
特色
菊名徒歩5分テラスハウス、2年定期借家再契約型★駐車場付(無料)、7.3畳の大型ロフト付、フローリング、バストイレ別、追焚バス、浴室乾燥機能付、独立洗面脱衣室、シャンプードレッサー、室内洗濯機置場、システムキッチン(3口ガスコンロ)、エアコン(全室3基)、室内照明3台、収納、2面バルコニー、モニタ付インターホン、BS、【その他の初期費用】:火災保険(詳細、要確認)、保証会社(初回・賃料等×50%/2年、更新時・20%/2年)、24時間安心サポート(11,000円/2年)、★ペット飼育相談(室内のみ、小型犬1匹迄、敷金2ヶ月・2ヶ月分償却)、☆駅から平坦、☆徒歩1分内にスーパー「サミット」、ファミマ、港北図書館










